The Day After House
Madrid, 2021
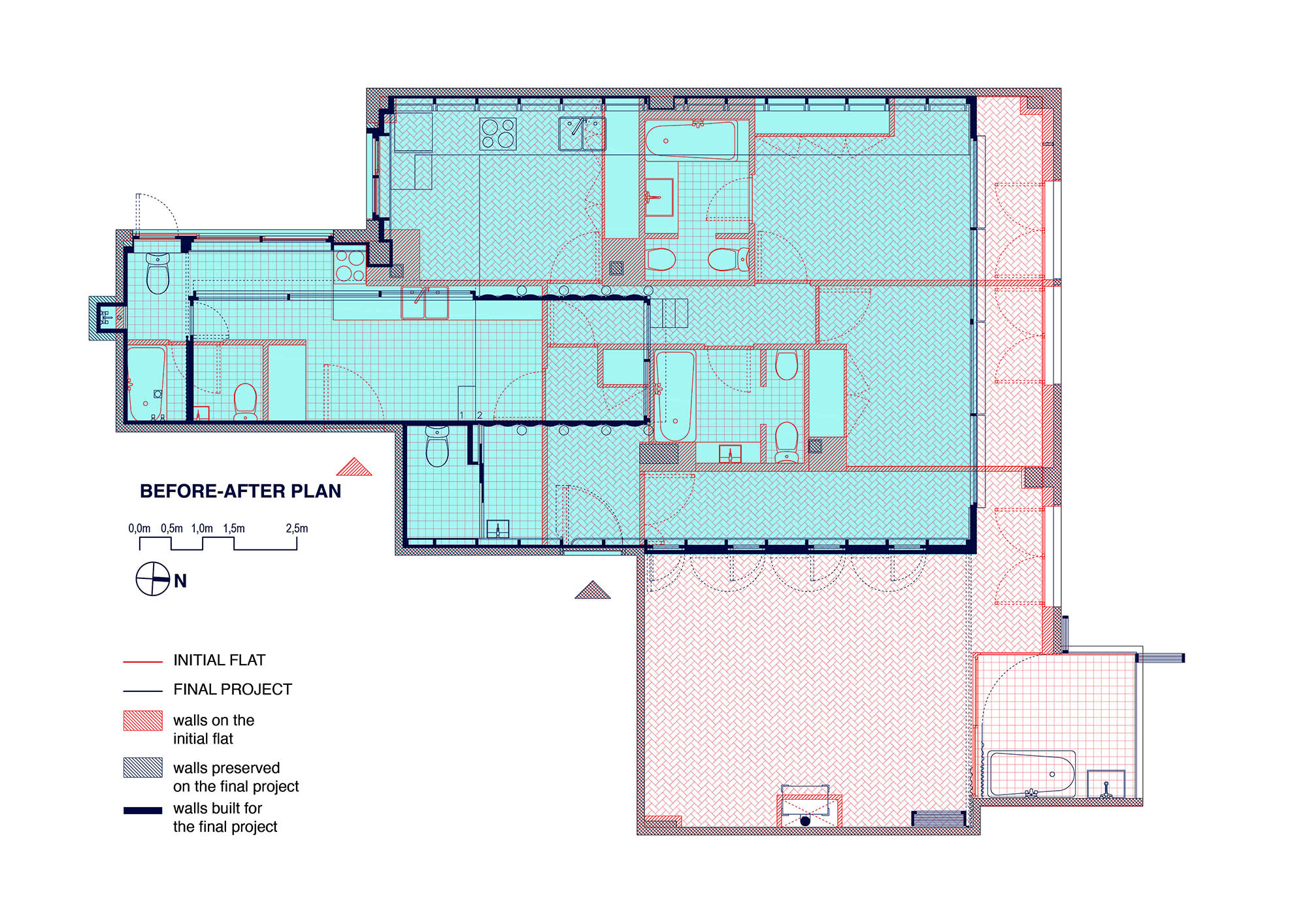
“The Day After House” is the renovation of a 110 sqm apartment in Madrid to update the domestic space according to the new models of use and environmental
consciousness after the emergence of the new climate regime and fossil fuel crisis.
The project is developed under three main ideas:
The first one is the work with thermal gradients for the functional and programmatic configuration of the house, as opposed to a more traditional scheme based on the combination of rooms and corridors. In the new proposal, the distribution considers the climatic and environmental specificities of each space. As if it were the layers of an onion, the spaces of the house get nested each one inside of another. This operation allows us not to use corridors saving this space for the rest of the house as well as working as a method for saving energy. As we get close to the central spaces of the house, they get more and more insulated and have less need in terms of extra energy. This kind of climatic diverse distribution is inserted in a context of energetic scarcity and a continental climate characteristic from Madrid, with strong heat waves during summer and intense cold periods in the winter, and allows us to unify functional program, climate, and efficiency.
The second idea is the use of materials with low CO2 emissions, basically wood and natural cork as the main materials. The flat is mainly oriented to the North and its lacks of solar energy contribution. This fact significantly reduced the palette of possible materials; it was essential to look for a material that had a high performance as an insulation to reduce energetic losses, but at the same time it had little inertia so it was quick to warm up.
And the third idea is to build, both for economic and energetic reasons, just half of the total surface of the house and empty the other half including its windows, creating like this a sort of interior non-conditioned terrace. Taking into account both the little resources and the Madrid climate that has high temperatures most of the year, we explored the possibility of understanding the 110 sqm of the flat as an empty shoe box where we “only” built on its interior another 60 sqm perfectly thermally insulated box (Winter House), leaving the spare 50 sqm as an interior terrace (Summer House). What seemed a restriction in the beginning (a very low budget) turned into a multiplying element with this action. Two houses for the price of one. The materiality of this “Summer House” acts opposite to that of the “Winter House”. The insulations on the walls, ceilings, and floors are removed and the surface of these elements was finished with cement mortar that has a great inertia to capture the heat during the summer, stealing it from the interior air. Finally, the incorporation of a wood stove and a folding door system extends the usability of this space for the rest of the year.
Around these three basic ideas, some other complementary strategies both material and programmatic, reinforce the project:
The space of the kitchen is understood as a non-gender-related space. An open configuration of the kitchen encourages the equitable use of its space by the different members of the family. The materiality of the kitchen isn’t different from that of the space for living or dining and its worktop is placed at a 75cm height instead of the standard 90cm, which allows it to be an indissoluble part of the dining table or office desk and connects the kitchen with the rest of the house.
The advantages of sleeping together are countless, both for climatic and energy-saving reasons and for the reinforcement of emotional links. The project chooses to build a single and “communal” bedroom regardless of the number of inhabitants of the house. A big, long, and spatial complex bedroom that incorporates different layers allowing different ways of the relation between the inhabitants.
The bath spaces are also reconsidered. The project proposes a hedonistic and playful vision of these spaces which are located on the best parts of the house close to the façades. They are well-illuminated and well-ventilated and understood as spaces to use even by several people at the same time.
Finally, there are other minor aspects, but also important that have been considered when designing the project. For instance the incorporation of a suitable place for vegetation life in the flat. Not only for aesthetic or welfare reasons, but the incorporation of a good quantity of plants in the domestic sphere will help to keep a fresh environment during the summer.
The project is developed under three main ideas:
The first one is the work with thermal gradients for the functional and programmatic configuration of the house, as opposed to a more traditional scheme based on the combination of rooms and corridors. In the new proposal, the distribution considers the climatic and environmental specificities of each space. As if it were the layers of an onion, the spaces of the house get nested each one inside of another. This operation allows us not to use corridors saving this space for the rest of the house as well as working as a method for saving energy. As we get close to the central spaces of the house, they get more and more insulated and have less need in terms of extra energy. This kind of climatic diverse distribution is inserted in a context of energetic scarcity and a continental climate characteristic from Madrid, with strong heat waves during summer and intense cold periods in the winter, and allows us to unify functional program, climate, and efficiency.
The second idea is the use of materials with low CO2 emissions, basically wood and natural cork as the main materials. The flat is mainly oriented to the North and its lacks of solar energy contribution. This fact significantly reduced the palette of possible materials; it was essential to look for a material that had a high performance as an insulation to reduce energetic losses, but at the same time it had little inertia so it was quick to warm up.
And the third idea is to build, both for economic and energetic reasons, just half of the total surface of the house and empty the other half including its windows, creating like this a sort of interior non-conditioned terrace. Taking into account both the little resources and the Madrid climate that has high temperatures most of the year, we explored the possibility of understanding the 110 sqm of the flat as an empty shoe box where we “only” built on its interior another 60 sqm perfectly thermally insulated box (Winter House), leaving the spare 50 sqm as an interior terrace (Summer House). What seemed a restriction in the beginning (a very low budget) turned into a multiplying element with this action. Two houses for the price of one. The materiality of this “Summer House” acts opposite to that of the “Winter House”. The insulations on the walls, ceilings, and floors are removed and the surface of these elements was finished with cement mortar that has a great inertia to capture the heat during the summer, stealing it from the interior air. Finally, the incorporation of a wood stove and a folding door system extends the usability of this space for the rest of the year.
Around these three basic ideas, some other complementary strategies both material and programmatic, reinforce the project:
The space of the kitchen is understood as a non-gender-related space. An open configuration of the kitchen encourages the equitable use of its space by the different members of the family. The materiality of the kitchen isn’t different from that of the space for living or dining and its worktop is placed at a 75cm height instead of the standard 90cm, which allows it to be an indissoluble part of the dining table or office desk and connects the kitchen with the rest of the house.
The advantages of sleeping together are countless, both for climatic and energy-saving reasons and for the reinforcement of emotional links. The project chooses to build a single and “communal” bedroom regardless of the number of inhabitants of the house. A big, long, and spatial complex bedroom that incorporates different layers allowing different ways of the relation between the inhabitants.
The bath spaces are also reconsidered. The project proposes a hedonistic and playful vision of these spaces which are located on the best parts of the house close to the façades. They are well-illuminated and well-ventilated and understood as spaces to use even by several people at the same time.
Finally, there are other minor aspects, but also important that have been considered when designing the project. For instance the incorporation of a suitable place for vegetation life in the flat. Not only for aesthetic or welfare reasons, but the incorporation of a good quantity of plants in the domestic sphere will help to keep a fresh environment during the summer.
Architects:
TAKK, Mireia Luzárraga + Alejandro Muiño
Collaborators:
Andrea Muniain, Ronte Escobar
Client:
Private
Photo:
José Hevia
TAKK, Mireia Luzárraga + Alejandro Muiño
Collaborators:
Andrea Muniain, Ronte Escobar
Client:
Private
Photo:
José Hevia






























